

















































| 名称 | 額新町1丁目B棟リ |
|---|---|
| 物件種別 | 新築戸建 |
| 所在地 | 金沢市額新町1丁目 |
| 価格 | 29,600,000円 |
| 交通 | 北陸鉄道石川線額住宅前駅から80m |
| 物件ID | 47227 |
| ポイント | イオンタウン野々市まで車で約5分!ZEH仕様!LDKも15帖あり広々♪太陽光パネル4.92KW搭載のオール電化住宅! |
Google Map
物件詳細
| 物件名称 | 額新町1丁目B棟リ | 物件種別 | 新築戸建 |
|---|---|---|---|
| 物件ID | 47227 | 取引態様 | 一般媒介 |
| 住所 | 金沢市額新町1丁目 | ||
| 所在地区分 | 金沢南 | 学区 | 金沢市立扇台小学校 990 |
| 交通 | 北陸鉄道石川線額住宅前駅から80m | ||
| 価格 | 29,600,000円 | 坪単価 | 1,084,249円 |
| 共益費・管理費 | 積立金 | ||
| その他費用 | |||
| 構造 | 木造 | 階数 | 2階建て |
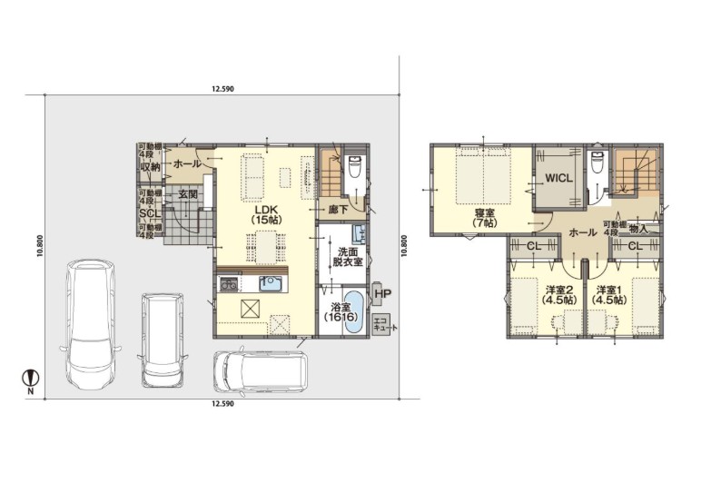
| 間取り | 3SLDK | 間取り備考 | |
| 広さ | 向き | 北 | |
| 築年月 | 2026年2月 | ||
| 土地面積 | 136.20m² | 土地坪 | 41.2坪 |
| 地目 | 宅地 | 用途地域 | 第一種中高層住居専用 |
| 建ぺい率 | - | 容積率 | - |
| 土地権利 | 所有権 | ||
| 現況 | |||
| 引渡し日 | 即時 | 引渡条件 | |
| 駐車場 | 空あり無料 | ||
| 特徴・設備 | シャワー付洗面化粧台/ウォークインクロゼット/オール電化/カウンターキッチン/シューズインクローゼット/太陽光発電システム | ||
| 周辺環境 | コンビニまで473m スーパーまで670m 総合病院まで2607m | ||
| セールス ポイント | イオンタウン野々市まで車で約5分!ZEH仕様!LDKも15帖あり広々♪太陽光パネル4.92KW搭載のオール電化住宅! | ||
| 物件備考 | |||
物件お問い合わせ
物件名:額新町1丁目B棟リ
物件ID:47227
※受付時間:AM9:00-PM5:00
LINEでもお問い合わせを受け付けております。
